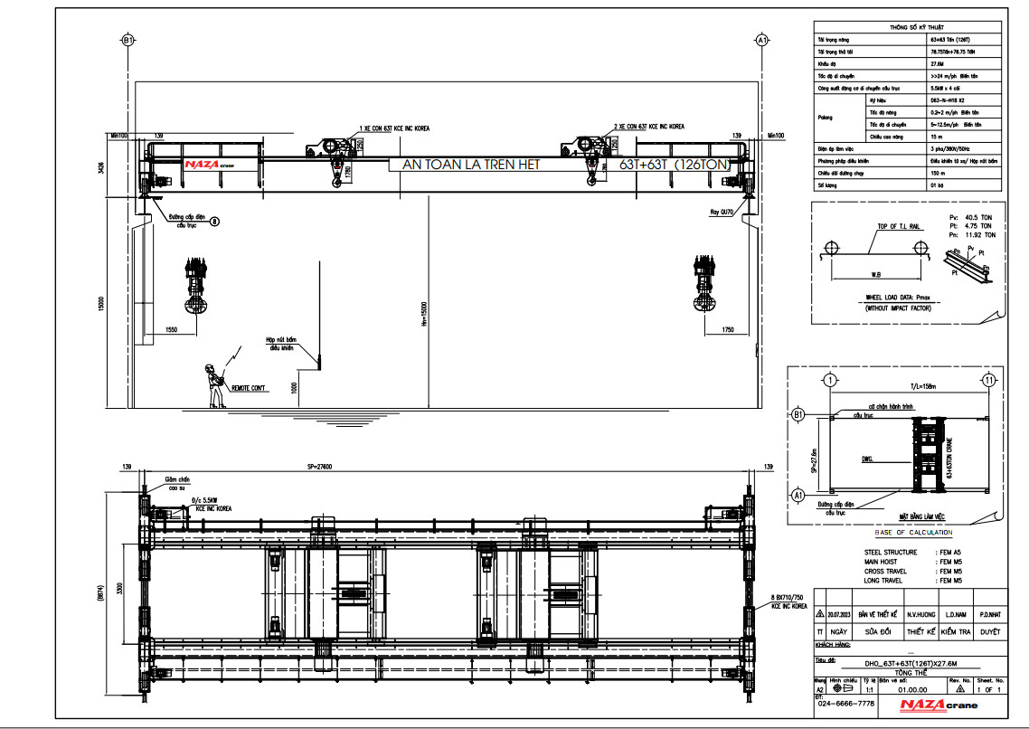
Cầu trục 63+63 TẤN : Đây là loại cầu trục dầm đôi với thiết kế 2 móc 63 tấn
– Thông số kỹ thuật cầu trục 63+63 tấn cụ thể như sau:
Thông số chung:
+ Tải trọng nâng hạ 126 tấn
+ Khẩu độ tim ray ngang: Lk = 27,6 mét
+ Chiều cao nâng hạ tối đa tới móc : Hn = 15mét
+ Chiều dài dọc hoạt động cầu trục: 150m mét
+ Sử dụng ray QU 70 liên kết hàn cóc kẹp ray
Thông số pa lăng:
+ Tải trọng nâng tối đa 1 móc 63.000 kg (63 tấn)
+ Tốc độ nâng/hạ 2 tốc độ: 0,2/2 mét/phút { điều khiển biến tần }
+ C/suất động cơ nâng: 33kWx6p
+ Tốc độ di chuyển palang 2 tốc độ: 8~12.5 mét/phút {điều khiển biến tần}
+ Công suất di chuyển pa lăng: 2,2kW x 2 cái
+ Tốc độ di chuyển dọc cầu trục 2 tốc độ: 5~12mét/phút
+ C/suất di chuyển cầu trục: 5,5kw x 4 cái
Dưới đây là một số bản vẽ mà chúng tôi đã thiết kế
