- Loại thiết bị :XE CON DẦM ĐÔI 63T
- Mã hiệu : KCE D63-N-H18
- Số lượng : 01 chiếc
- Chế độ làm việc : FEM 2Am iso M5
- Tải trọng nâng : 63T
- Tải trọng kiểm tra 125% tải : 78.75
- Chiều cao nâng móc : 18 mét
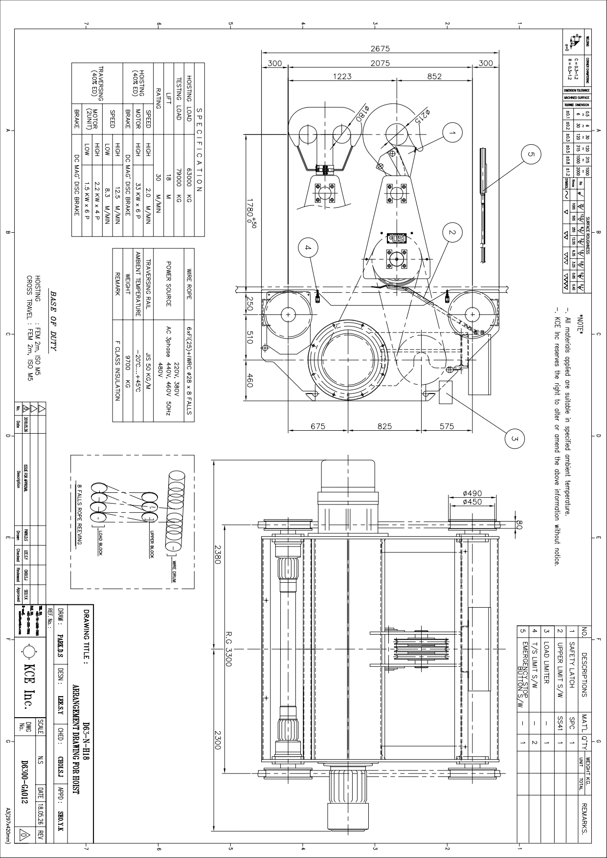
– Xe con 70 tấn :
Kí hiệu xe chạy : KCE D63N-H18
Chế độ làm việc : M5
Tải trọng nâng : 63 tấn
Tải trọng kiểm tra : 78.75 tấn
Chiều cao nâng móc : Hn(max) = 18mét
Số nhánh cáp cho một móc : 6xFI(25) 28×8 FALLS
Tốc độ nâng hạ tải trọng : 2.0 m/min
Công suất động cơ nâng hạ : 33 Kw*6P
Phanh nâng hạ : Phanh điện
Hộp số cơ cấu nâng : KCE Hàn Quốc
Tốc độ di chuyển xe chạy : 12,5 m/ph
Công suất động di chuyển xe chạy : 2 cái x 2,2 Kw*4P
- dầm cổng trục
– Tốc độ di chuyển cổng trục : 5~25 m/ph (Điều khiển bằng biến tần)
– Động cơ di chuyển cổng trục : Nhập khẩu của hãng KCE
– Công suất động cơ di chuyển cổng trục : 4 cái x 3,7 kW
– Kiểu phanh : Phanh đĩa điện từ
– Độ cứng bề mặt bánh xe : Nhiệt luyện đạt độ cứng 42-45 HRC
– Biến tần điều khiển di chuyển cổng trục
Công suất : 33kW
Hãng sản xuất : KCE KOREA
- Nguồn điện cung cấp cổng trục 63 tấn: Xoay chiều 380V, 3Pha, 50Hz
- Nguồn điện điều khiển cổng trục 63 ấn : 48 /110V
- Áp lực lớn nhất lên 1 bánh xe cầutrục : ~19.5 tấn
- Điều khiển cầu trục : Bằng tay gạt Joistick trong ca bin gắn cố định 1 bên chân cổng trục.
15.Vị trí lắp đặt cổng trục : Ngoài trời.
- Nhiệt độ môi trường làm việc : Max +450 C
- Độ ẩm môi trường làm việc : 95%
- Hệ thống cấp điện cho xe chạy dọc dầm chính : Tang quấn cáp Kiểu cáp xích công nghiệp, chạy bằng động cơ
- Tổng công suất tiêu thụ điện : 55Kw
Bản vẽ cổng trục 63 tấn