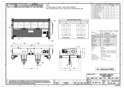
- Loại thiết bị : Cầu trục dầm đôi
- Mã hiệu : KCE 90(45Tx45t) H 65M CRAB
- Số lượng : 01 chiếc
- Chế độ làm việc : FEM 1Am
- Tải trọng nâng :
+ Móc số 1 : 45 tấn
+ Móc số 2 : 45 tấn
- Tải trọng kiểm tra :
+ Móc số 1 : 56,25 tấn
+ Móc số 2 : 56.25 tấn
- Khẩu độ cầu trục 90 tấn : 29.4mét
- Chiều cao nâng móc : 65 mét
– Xe con 45+45 tấn :
Kí hiệu xe chạy : CR90T -H65-CRAB
Chế độ làm việc : M5
Tải trọng nâng : 90 tấn
Tải trọng kiểm tra : 112.5 tấn
Chiều cao nâng móc : Hn(max) = 65mét
Số nhánh cáp cho một móc : 6xFI(29) FALLS
Tốc độ nâng hạ tải trọng : 0,8 / 3/5 m/ph
Công suất động cơ nâng hạ : 75 Kw*6P
Phanh nâng hạ : Phanh thủy lực kiểu phanh tang trống
Hộp số cơ cấu nâng : KCE Hàn Quốc
Tốc độ di chuyển xe chạy : 1.2/15 m/ph (Điều khiển bằng biến tần)
Công suất động di chuyển xe chạy : 2 cái x3, 7 Kw*4P
- dầm cầu trục
– Tốc độ di chuyển cổng trục : 30/10 m/ph (Điều khiển bằng biến tần)
– Động cơ di chuyển cổng trục : Nhập khẩu của hãng KCE
– Công suất động cơ di chuyển cổng trục : 4 cái x5.5 kW
– Kiểu phanh : Phanh đĩa điện từ
– Độ cứng bề mặt bánh xe : Nhiệt luyện đạt độ cứng 42-45 HRC
– Biến tần điều khiển di chuyển cổng trục
Công suất : 75 kW
Hãng sản xuất : KCE KOREA
- Nguồn điện cung cấp cầu trục 90tấn: Xoay chiều 380V, 3Pha, 50Hz
- Nguồn điện điều khiển cầu trục 90 tấn : 48 /110V
- Áp lực lớn nhất lên 1 bánh xe cầutrục : ~25 tấn
- Điều khiển cầu trục : Bằng tay gạt Joistick trong ca bin gắn cố định 1 bên chân cổng trục.
15.Vị trí lắp đặt cổng trục : Ngoài trời.
- Nhiệt độ môi trường làm việc : Max +450 C
- Độ ẩm môi trường làm việc : 95%
- Hệ thống cấp điện cho xe chạy dọc dầm chính : Kiểu cáp xích công nghiệp, chiều dài cung cấp 29.5 mét .
- Hệ thống cấp điện cho cầu trục chạy dọc : cáp điện 4p 120A
- Tổng công suất tiêu thụ điện : 105 Kw
ản vẽ cho xe con 90t(45+45)
![]()

